怡緻
「有你陪伴的日子,生活就是溪畔陽光下盛開的野花,迎著春風揣著夢想用生命抒寫一首首纏綿雋永的詩。」
- 地點台中市
- 成員母女
- 房屋類型新成屋
- 案名南屯
- 坪數62坪
- 格局3房2廳
背景分析
緊鄰文教學區、新市政中心與六大產業核心特區,一樹一院,將建築與自然地景完美結合,是少見的生態小型Villa透天宅,展現自然的生活美學,在家即能聆聽自然演奏的四季協奏曲。身處都市脈動中,也能保有個人步調,用悠緩的生活態度體現特有的高貴雅緻。



設計概念
「宇宙洪荒,生命浩瀚,但只有我和你,真正分享過心跳。」母女同住的獨棟別墅,揉合母女不同品味風格,將空間調性交織成專屬母女的優雅秀麗。利用原始基地條件的採光良好的優勢,將原有的庭院進行改造。並強調材質肌理與戶外光線的自然交錯,達成空間中的室內外連結。同時也象徵著母親與女兒由過去的生活迎向一起攜手寫下的新篇章。整體空間以弧形、光暈、線條交織出細膩柔美的氛圍。賦予心靈踏實感與歸家感,排除多餘的裝飾,以低調奢華順應空間,呈現最自然脫俗的樣貌。

創意巧思
母親喜歡用金屬與石材點綴空間展現品味質感,女兒則偏好現代簡約營造出的溫柔宜人。除了在各自私領域設計出兩人的不同風格外,在公區局部利用點綴的方式達到兩人都能接受與喜歡的樣貌。一樓利用特殊塗料呈現肌理感,並用簡約石紋點綴,同時加入木紋。利用光影變化與分割線條詮釋層次感。


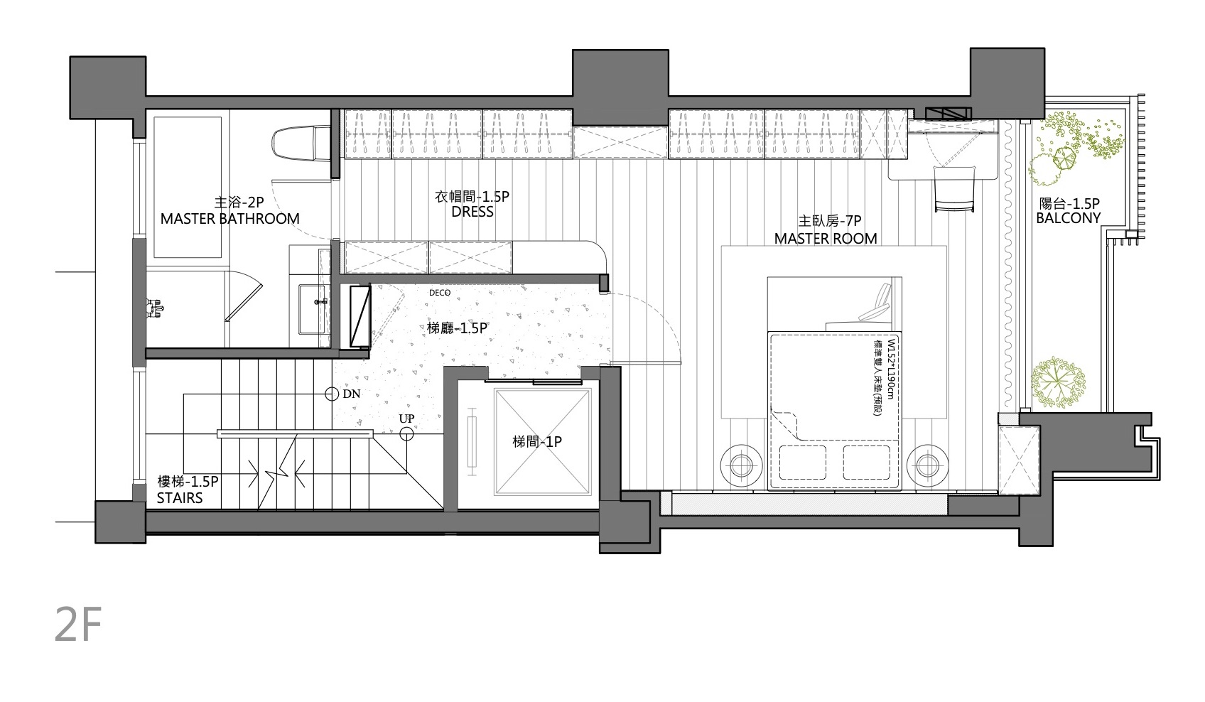
二樓為母親的私領域,大量利用燈光、玻璃、金屬材質,營造出視覺上的輕奢感。


三樓為女兒房,整體線條俐落不多做矯飾,體現女兒輕簡約之風格。


女兒的工作室則重軟裝,可以隨著穿搭風格的不同恣意調整傢具配置,能夠在任何角度拍出適合的照片。


將原有挑高的空間做了新的夾層,透過光影詮釋層次感,襯托出木紋的肌理。既可作為賓客來訪時的客房,也可以是女兒的工作室。

「將所有的夢想及記憶,真實的呈現在生活的場景之中。滿足人對生活的所有想像,即是在平凡日子裡,也具有前進動力」













集團官網
全球先進SSL 256bit傳輸加密機制